Projekt
Wohnungen
Kontakt
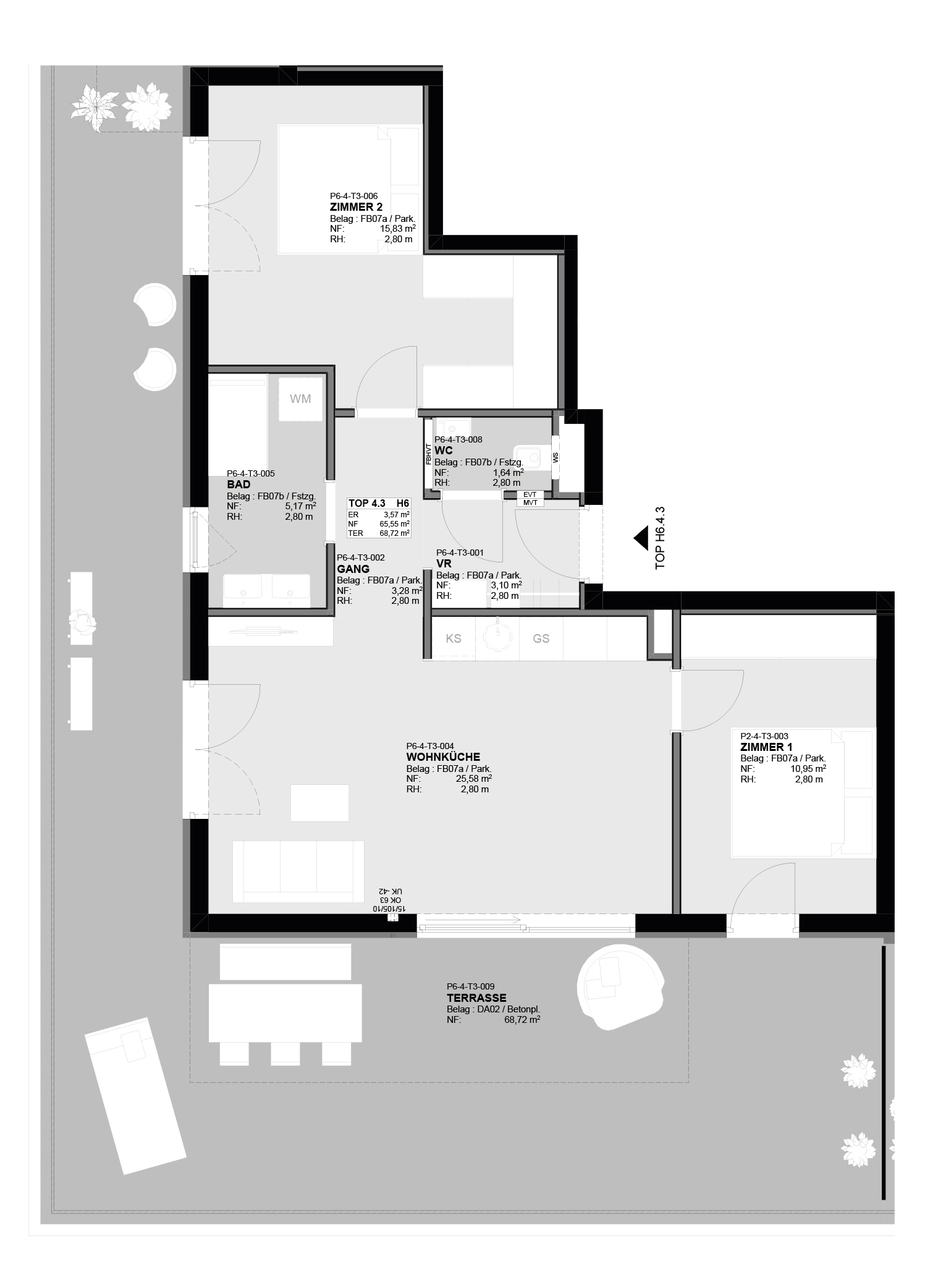
6.4.3
30. August 2024
←
Vorheriger:
6.4.2